studio@levelupnz.co.nz

022 170 4971

CONCEPTS / 3D

PROJECTS

HOME

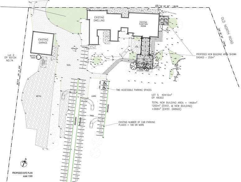
WEDDING VENUE at KUMEU

This project involved a renewal of the existing estate house at a wedding venue and a vineyard. New wedding hall of about 120sq.m was proposed to accomplish  the South wing of the building extending dipper into

the orchards and grapevines.

 

The main idea of the new area was to create a shelter for the main ceremonies inside the garden. At the same time, this block has become

a welcoming feature of the estate.

 

The project was divided into two stages with later glazing and

big sliders installation.

in collaboration with

MAHENDRA  DAJI  ARCHITECT Ltd

2015

252 sqm

Project team :

 

Mahendra Daji

Lena Ochkalova